Vijhestraat 9

3841 CW Harderwijk
€615.000 k.k.

Kenmerken

Status: Verkocht
Woonoppervlakte: 155 m2
Perceeloppervlakte: 195 m2
Inhoud woning: 556 m3
Externe bergruimte: 8 m2
Aantal kamers: 4
Aantal slaapkamers: 3
Aantal badkamers: 1

Omschrijving

Uniek herenhuis uit 1755 met royale tuin en uitzicht op het Wolderwijd in het hart van Harderwijk!

Wij bieden u de kans om te wonen in een karakteristiek HERENHUIS, gelegen in het historische centrum van Harderwijk. Dit monumentale pand combineert historische charme met de mogelijkheid om het naar eigen smaak en wensen in te richten.

Wat deze woning extra bijzonder maakt, is de royale achtertuin – een zeldzaamheid in de binnenstad – die direct grenst aan de oude stadsmuur, wat voor veel privacy en sfeer zorgt. Vanuit de eerste etage heeft u bovendien een adembenemend uitzicht op het Wolderwijd.

Dit is dé ideale locatie voor wie op zoek is naar een statige woning met karakter, op loopafstand van het vernieuwde Strandeiland, de boulevard en het bruisende centrum van Harderwijk. Maak van dit monumentale herenhuis uw droomwoning en geniet van de rijke geschiedenis en de unieke ligging!

Benieuwd naar de mogelijkheden? Neem vandaag nog contact met ons op voor meer informatie en plan een bezichtiging om deze unieke woning zelf te ervaren.

KENMERKEN:
Woonoppervlakte: ca. 155 m²
Externe bergruimte: ca. 8 m²
Inhoud: ca. 556 m³
Perceel: ca. 195 m²
Bouwjaar: oorspronkelijk 1755.

Indeling:
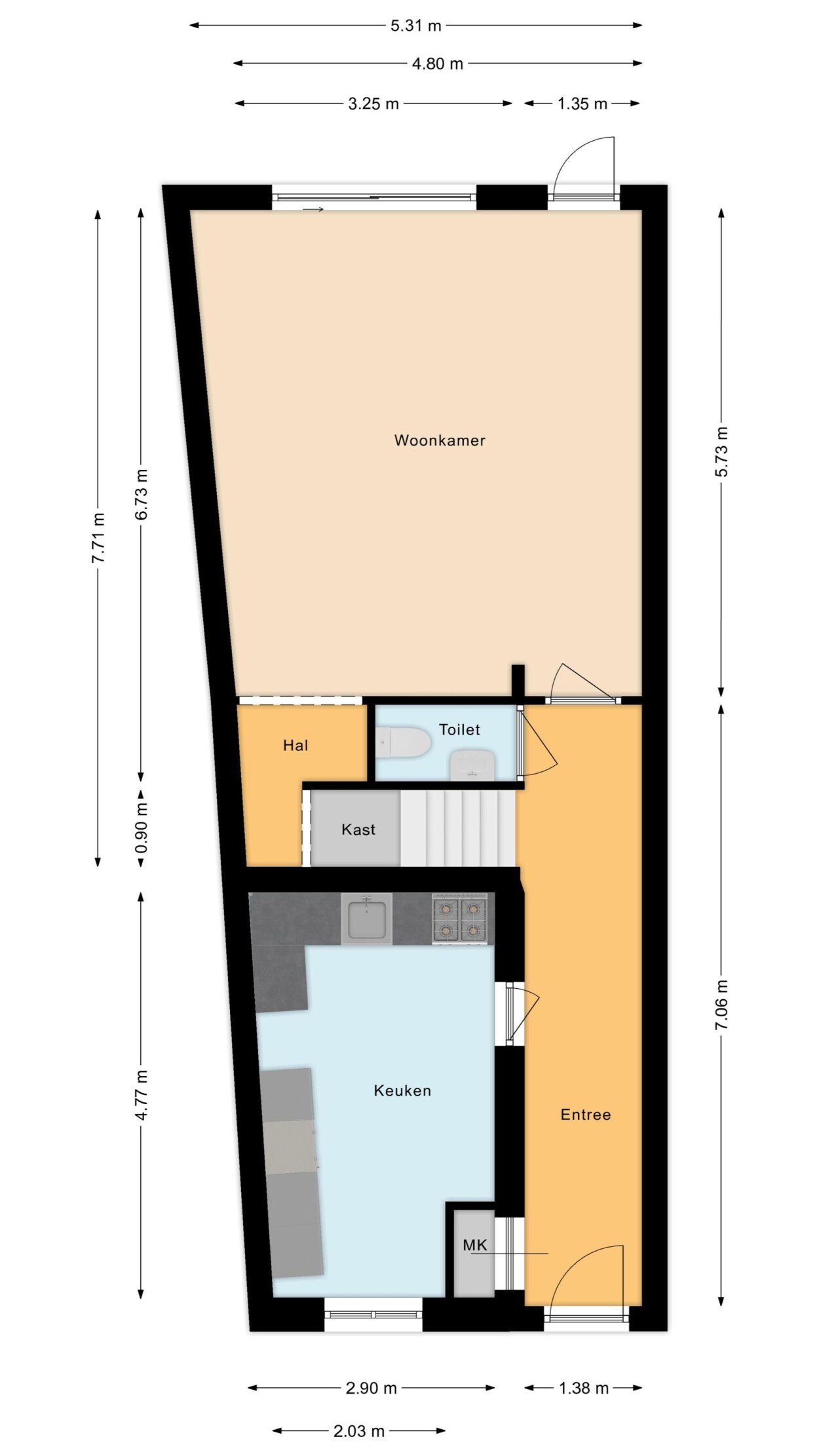
Begane grond:
Bij binnenkomst in dit prachtige herenhuis wordt u verwelkomd door een royale entree met een indrukwekkende hoogte van ca. 3 meter! Deze ruime hal biedt toegang tot de meterkast, een toiletruimte en de keuken aan de voorzijde van de woning. De entree leidt verder naar de afgesloten woonkamer aan de achterzijde, waar u direct de rust en sfeer van dit historische pand ervaart. De woonkamer is voorzien van een vaste kast en een schuifpui die toegang biedt tot de achtertuin. De tuin, die grenst aan de oude stadsmuur, maakt deze plek extra bijzonder en biedt volop privacy. Hier kunt u heerlijk ontspannen en genieten van de unieke ligging.

Eerste verdieping:
De eerste verdieping is te bereiken via een fraaie bordestrap, die niet alleen functioneel is, maar ook het aanzien van de woning vergroot. De ruime overloop biedt toegang tot twee grote slaapkamers en een badkamer, die is voorzien van een douche, toilet en een vaste wastafel.

Aan de voorzijde van de woning bevinden zich oorspronkelijk twee slaapkamers, maar op dit moment is dit één grote ruimte die eenvoudig weer opgesplitst kan worden in twee afzonderlijke kamers. De master bedroom is gelegen aan de achterzijde van de woning en biedt een verbluffend uitzicht over het Wolderwijd, waardoor u elke dag kunt genieten van de rust en de prachtige omgeving.

Tweede verdieping:
De tweede verdieping is te bereiken via een dezelfde bordestrap. Deze verdieping beschikt over een ruime overloop en een derde slaapkamer aan de voorzijde van de woning. Deze verdieping beschikt eveneens over een ruime berging met de de opstelplaats van de CV-combiketel en de wasapparatuur.

VOORWAARDEN:
- Let op! De prijs bedraagt een vanaf prijs. Biedingen onder deze prijs worden niet in behandeling genomen.
- Geen vragenlijst en lijst van zaken aanwezig;
- Verkoper heeft de woning niet zelf bewoond en staat daarom niet in voor de bouwkundige staat van de woning;
- Adviseren de kandidaat koper om een bouwtechnische keuring uit te laten voeren;
- De verkoop wordt afgehandeld door een projectnotaris, notariskantoor Vitaris Notarissen te Ermelo is hiervoor aangewezen;
- Een zelfbewoningsverplichting en een anti-speculatie-beding bij verkoop van vijf (5) jaar zal worden opgenomen in het eigendomsbewijs;
- Koper is bekend dat de woning een Rijksmonument betreft. 
- Het is koper bekend dat de bouwkwaliteit van het verkochte niet voldoet aan de huidige daarvoor gestelde eisen. Er zal dan ook een ouderdomsclausule doen worden opgenomen.
- Oplevering per direct mogelijk.

VRAAGPRIJS € 600.000,-- K.K.
Aanvaarding in overleg, op korte termijn mogelijk.
Lees meer

Kenmerken

Status Verkocht
Aanbod ID: 9741056
Woonoppervlakte: 155 m2
Perceeloppervlakte: 195 m2
Inhoud woning: 556 m3
Externe bergruimte: 8 m2
Aantal kamers 4
Aantal slaapkamers 3
Aantal badkamers 1

Meer informatie of een bezichtiging plannen?

Bel 0341 456 424 Of stuur een bericht Plan een bezichtiging

Eigenschappen

Cv ketel

Glasvezel kabel

Schuifpui

Tv kabel

Locatie

Vijhestraat 9 , 3841 CW Harderwijk , Nederland

Plan een bezichtiging

Vul hieronder uw gegevens in voor het aanvragen van een bezichtiging. Wij zullen zo spoedig mogelijk contact met u opnemen.

Aanmelden updates stille verkoop